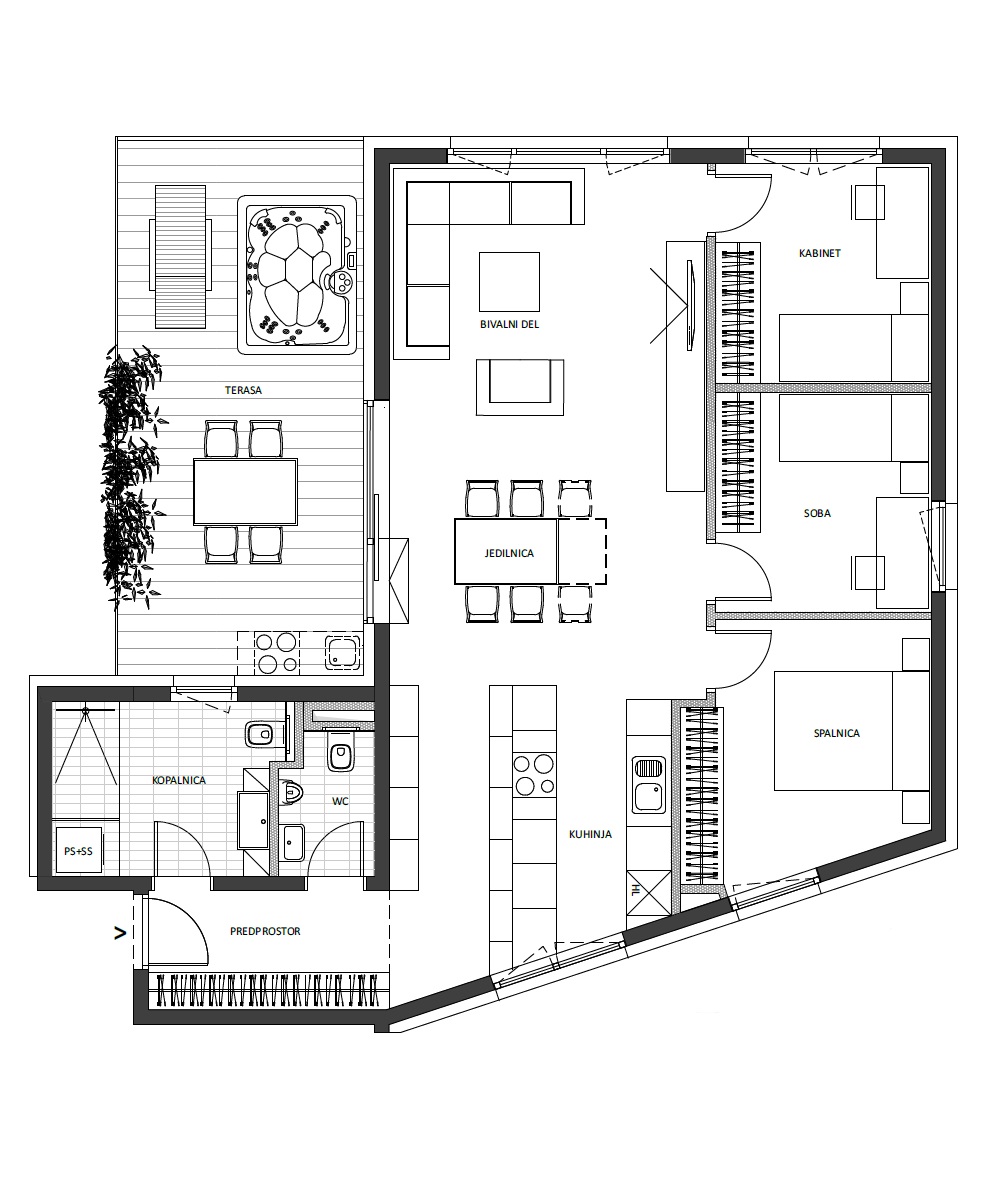
2H / 4-sobno / 2.nadstropje
Predprostor 5,15 m2
Kopalnica7,16 m2
WC2,41 m2
Kuhinja+jedilnica+bivalni del 44,37 m2
Spalnica 10,68 m2
Soba8,59 m2
Soba/kabinet 8,59 m2
Terasa25,39 m2
Shramba 6,60 m2
Skupna površina 118,94 m2
Status Prodano
Cena –
Parkirno mesto/podzemna garaža –

