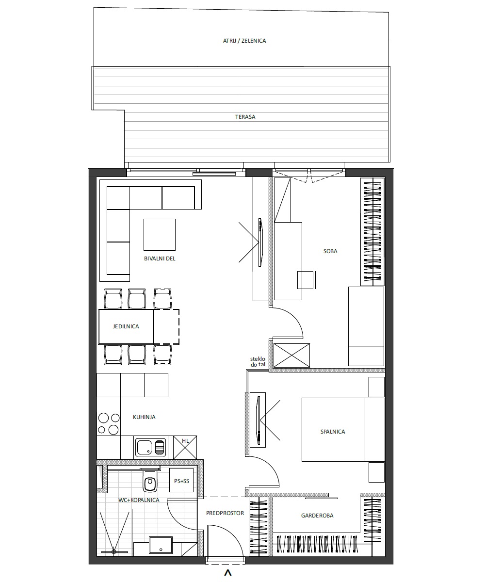
PF / 3-sobno / pritličje
Predprostor 2,47 m2
WC+kopalnica 5,69 m2
Kuhinja+jedilnica+bivalni del 30,72 m2
Spalnica 10,54 m2
Soba13,80 m2
Garderoba4,27 m2
Terasa 16,97 m2
Shramba 3,03 m2
Skupna površina 87,49 m2
Atrij/zelenica 10,71 m2
Bruto površina 98,20 m2
Status Prodano
Cena –
Parkirno mesto / podzemna garaža …..–

